Our Projects
Welcome to the projects gallery of DSJ Creative Designs, where we showcase a compilation of our finest work. Ranging from elegant web designs to innovative digital marketing strategies, each project represents our dedication to deliver unique and high-quality solutions tailored to our clients’ needs. We invite you to explore and experience our creativity, technical prowess, and commitment to excellence which is evident in each project we undertake.
Chestnut
Residence
The Chestnut Residence project resulted in a highly functional and aesthetically pleasing living environment that met the client’s vision of a dream home, further cementing DSJ Creative Designs commitment to innovative, customer-centric design solutions.
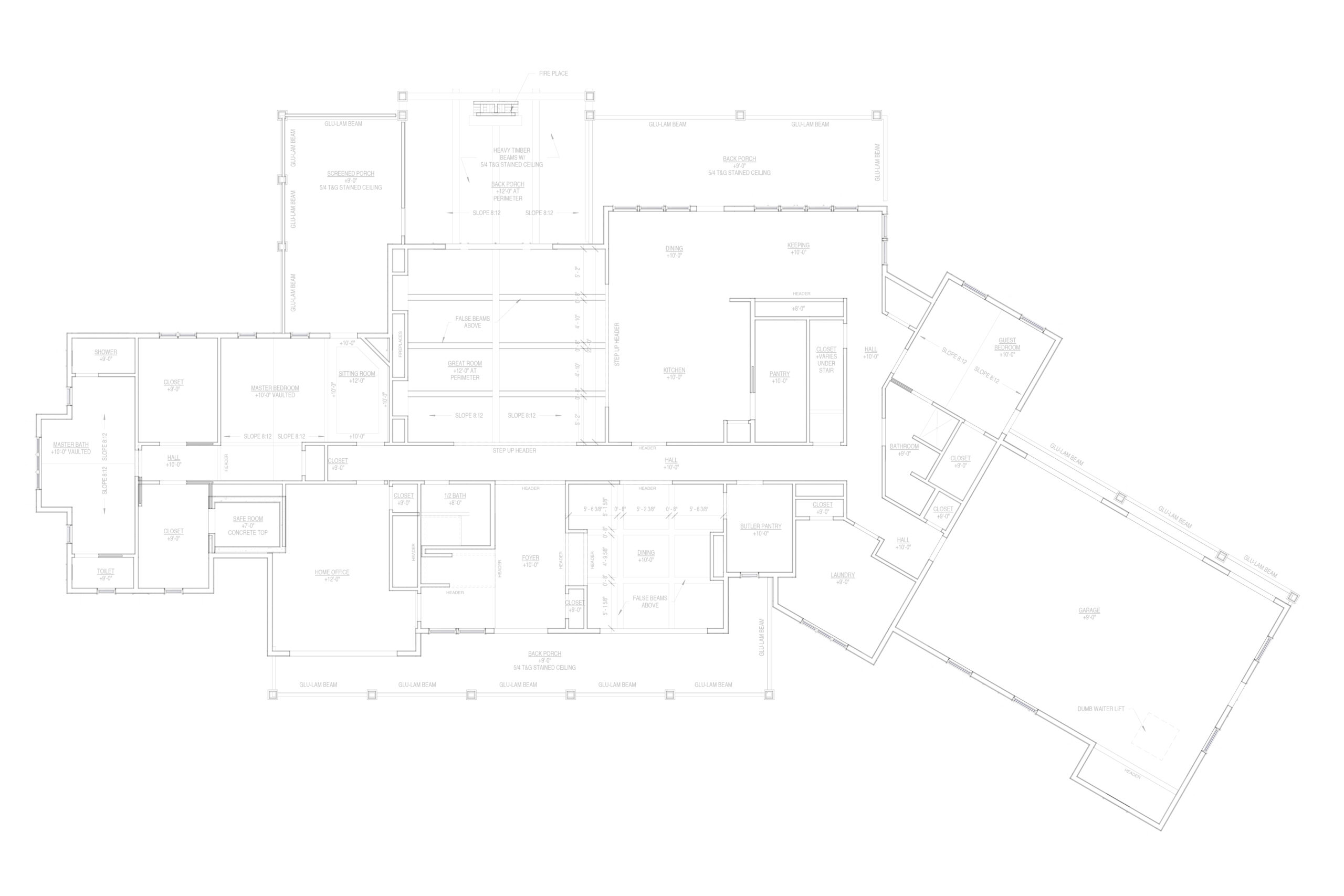
Walker
Residence
DSJ Creative Designs expertly combined modern architecture with natural elements in the construction of the Walker Residence. The incorporation of stone on the exterior not only ensured structural integrity but also bestowed a timeless, elegant charm. This achievement stands as a testament to DSJ Creative Designs’ skilled craftsmanship and thoughtful design approach.
Aberdeen
Electric
DSJ Creative Designs have embarked on a monumental remodeling task for the Aberdeen Electric project, dedicated to fostering a fresh and modern touch. This project redefines the structural design, infusing a blend of contemporary aesthetics and functional prowess
Baker
Residence
The Baker Residence projectmirrors the firm’s adept fusion of functionality and aesthetics. This project unfolds as a captivating embodiment of thoughtful design, where every facet of the residence reflects a harmonious balance between utility and beauty.
Saltillo
concessions
& Restrooms
The Saltillo Concessions and Restrooms project by DSJ Creative Designs is a remarkable venture designed to further enhance the recreational experience in Saltillo. This project involves the innovative transformation and design of strategic spaces into hubs for individuals visiting the area.
NABORS
RESIDENCE
The Nabors Residence project by DSJ Creative Designs involved a comprehensive design of a residential property situated around a picturesque lake. The project focused on the functional and aesthetic elements of the home, featuring a mix of modern and classic design elements to create a truly unique living space. A standout feature included the addition of a large window that offers a stunning view of the serene lake, enhancing the overall charm and appeal of the residence.
Mt. Vernon
Chapel
The Mt. Vernon Chapel project was an exciting challenge undertaken by DSJ Creative Designs. Our team was tasked with revitalizing the building’s aesthetics, which included the addition of a chapel, transforming the space from a house to a funeral home, all while preserving its timeless appeal.
Patel
Residence
The Patel Residence project was a ground-up endeavor by DSJ Creative Designs. The focus of this new home was on crafting a modern living space that harmoniously blends with its natural surroundings. A notable addition was the incorporation of a spacious balcony at the back, providing an elevated vantage point to appreciate the scenic views and further enhancing the overall appeal of the residence.
stroupe
residence
The Stroupe Residence project by DSJ Creative Designs is a stunning representation of the firm’s ability to blend functionality with aesthetics seamlessly. The residence showcases an elegant curation of spaces that are both inviting and uniquely distinctive, tailored to the client’s taste and lifestyle requirements.
Woodcock
Residence
The Woodcock Residence, masterfully envisioned and executed by DSJ Creative Designs, is a testament to the firm’s exceptional ability to seamlessly integrate functionality with aesthetics. This project unfolds as a captivating representation of design excellence, where every corner of the residence is carefully curated to strike a perfect balance between utility and visual allure.
























































































































